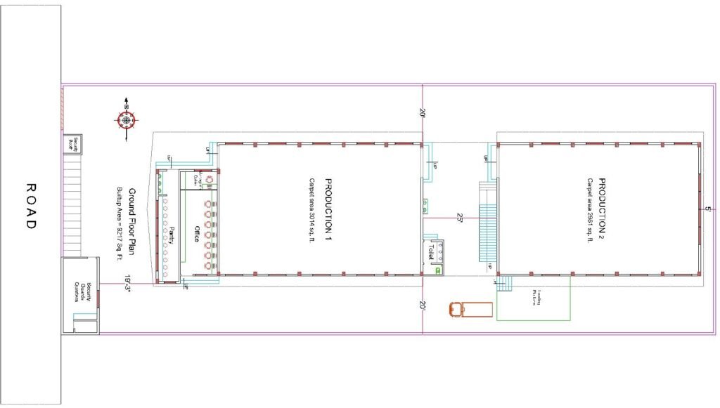
Our team had designed a factory building in late 2021. The project had two production areas on the ground floor separated by a covered 25′ common area. There was a pantry/canteen where workers can eat their lunch and afternoon tea. The facility also included administration and office space of the company

The front section has a security booth and parking space. Three sides of the factory building have wide open spaces to allow easy movement of vehicles and people. There is also a loading platform at the south side beside Production 2 Facility.

There is a 6′ staircase near the loading platform which takes us to the upper floor. The are a total of 30 steps, with 6″ riser and 11″ thread each. Slab top height of ground floor is 15′ from outer ground level. The plinth level of the manufacturing unit is 12″ from the site level, which is approximately 24″ higher than the outer road level.
The first floor is divided into 4 sections.
- Raw Materials Storage
- Packaging Materials storage
- Finished goods storage
- Uniform changing room & Rest Room

The toilet block is on the ground floor in the central open space where it is easily accessible to both production facilities. The client insisted that facility is entirely staffed with men, and so the toilet space is for male gender only.

The building is primarily an RCC structure, but the roof of the first floor is a steel structure. The roof has a series of wind turbine ventilators for natural ventilation and reduction in cooling costs. The ground floor height from plinth level is 14′ at slab top level. On the first floor, the total height of roof truss is 18′ at the highest level from the floor.
Please check out the 3D render video of the factory layout below.